
Latest News
Check back regularly to find out what’s happening at Hill Farm, Sharnbrook.
September 2025 - Construction works to commence at Hill Farm, Sharnbrook
We are pleased to share that construction at Hill Farm will shortly be commencing following the recent grant of planning permission on 29th August 2025.
In the initial stages, construction works will focus on site preparation including construction compound set-up as well as commencing construction of the Mill Road roundabout to facilitate safe access and movement. Strict measures in place to minimise disruption, including wheel washing, dust suppression and monitoring of noise and vibration. A Construction Management Plan, currently being agreed with Bedford Borough Council, will ensure all site traffic accesses the Mill Road entrance via the A6 and avoids Sharnbrook village.
Keep informed about the latest regarding the development through regular website updates, newsletters and a forthcoming drop-in session with the project team. Details of the drop-in session have been included within the most recent newsletter, which can be downloaded using the button below:
November 2024 – Trial/Bore hole works
Throughout the week commencing the 11th January 2025, "Bellway and Redrow consultants will be working to dig trial and bore holes across the Hill Farm, Sharnbrook site. This comes after the site was granted planning permission on Monday 14th October 2024.
Following this, surveys will be undertaken on the 22nd January 2025 along Templars Way. These surveys will primarily be conducted to the south of The Poplars, where there are plans for a foot/cycle link.
We apologise for any inconvenience this may cause. If you do have any queries on this please do not hesitate to contact our community representatives by email at: hillfarm-sharnbrook@devcomms.co.uk or by freephone on 0800 080 3293.
October 2024 - A6 Water Diversion works
From 28th October to 8th November 2024, Anglian Water will begin the final series of works to divert and deepen the water pipes.
This would mean that during this period, traffic lights will be installed in the area between the Riseley Road turning and the eastern A6 side of the layby. The Riseley Road turning will also be closed with a diversion in place.
We apologise for any inconvenience this may cause. If you do have any queries on this please do not hesitate to contact our community representatives by email at: hillfarm-sharnbrook@devcomms.co.uk or by freephone on 0800 080 3293.
October 2024 - Hill Farm, Sharnbrook approved at Planning Committee
On Monday 14th October, Bedford Borough Council's Planning Committee resolved to approve the Hybrid planning application (22/02193/MOF), bringing forwards the full permission for 304 dwellings, and outline Planning Permission for the remaining 196 dwellings, a primary school, community hub and associated infrastructure at Hill Farm, subject to a Section 106 agreement capturing a number of community benefits.
This is a key milestone towards delivering much needed new infrastructure for Sharnbrook and supporting housing delivery and the implementation of the Neighbourhood Plan allocation.
The project team will now begin a series of discussions with Bedford Borough Council to agree the Section 106, timescales and next steps for delivering this scheme. As such, we are liaising with the Parish Council to arrange initial meetings to update the local community on plans, timescales and traffic management through the construction period.
We will be in touch in due course with further information on this, however should you have any questions in the meantime, please do not hesitate to contact our community representatives by email at: hillfarm-sharnbrook@devcomms.co.uk or by freephone on 0800 080 3293.
September 2024 - Overhead Electric Cable work
From 18th September, MIDA (site contractors for Hill Farm), will begin trenching works and laying ducts on site, in preparation for electric diversion works. These works allow National Grid to start lowering the existing overhead cables and placing them underground. This work will commence from 4th November.
The plan below shows the new underground route (in brown), and the new points where the cables will go from underground to overground (and vice versa), (with yellow circles).
MIDA will access the site via the farm gate along Mill Road, and via the Hill Farm track.
We apologise for any inconvenience this may cause. If you do have any queries on this please do not hesitate to contact our community representatives by email at: hillfarm-sharnbrook@devcomms.co.uk or by freephone on 0800 080 3293.
July 2024 - Water diversion works
From 24th July - 21st August 2024, phase 2 of the water diversion works will be undertaken along the A6.
This will mean that during this period, 3 way lights (along the A6 both ways and down Riseley Road) will be in situ alongside a layby closure (on the Bedford route site), and there will also be a speed reduction to 40mph. Works will be undertaken between a stretch of the proposed new roundabout and to the layby.
We apologise for any inconvenience this may cause. If you do have any queries on this please do not hesitate to contact our community representatives by email at: hillfarm-sharnbrook@devcomms.co.uk or by freephone on 0800 080 3293.
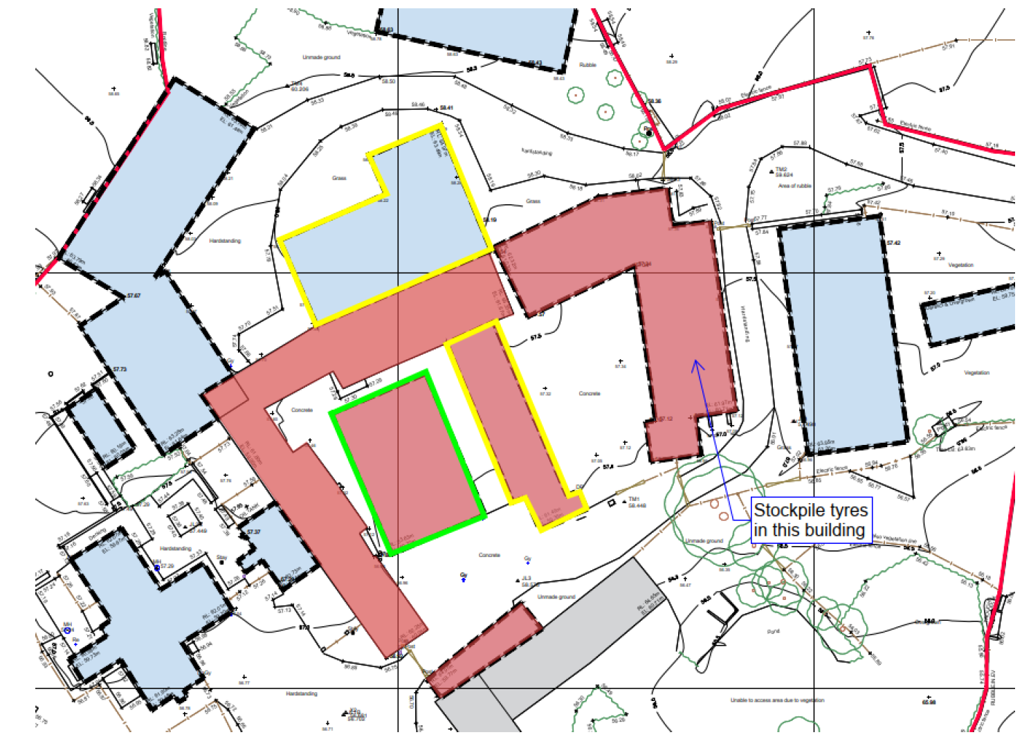
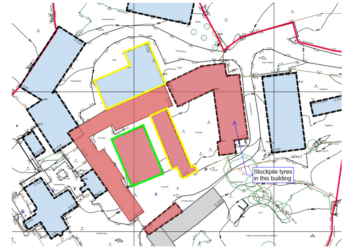
June 2024 - Building clearance notice
From 17th June 2024, contractors Jackson Demolition will start works to commence the clearance and partial demolition of some of the buildings onsite (please see in the attached plan - with buildings to be demolished highlighted in green and yellow). This work will allow us to survey the retained barns and buildings to help develop our working drawings for this area.
The area will be closed off with fencing and 'Keep out' signs will also be erected in this area.
If you do have any queries on this please do not hesitate to contact our community representatives by email at: hillfarm-sharnbrook@devcomms.co.uk or by freephone on 0800 080 3293.
June 2024 - Site works update
From 24th June 2024, our groundworker MIDA will start works on site for preparing the trenches for the existing overhead electric cables to be laid underground.
Currently only this trenching work is being undertaken, and we will update in due course when the actual cables will be grounded.
The work is due to last for a period of 3 weeks.
We apologise for any inconvenience this may cause. If you do have any queries on this please do not hesitate to contact our community representatives by email at: hillfarm-sharnbrook@devcomms.co.uk or by freephone on 0800 080 3293.
May 2024 - Water works and diversions
From 24th July 2024, a series of traffic lights will be installed along the A6 in the area between the Riseley Road turning and the eastern A6 side of the layby, as Anglian Water begin their second phase of works to divert and deepen the water pipes.
The works and diversion is expected to last for approximately a week.
We apologise for any inconvenience this may cause. If you do have any queries on this please do not hesitate to contact our community representatives by email at: hillfarm-sharnbrook@devcomms.co.uk or by freephone on 0800 080 3293.
May 2024 - works update
From 3rd June 2024, for a period of two weeks, archaeological works and back filling will be being undertaken on site by contractors Westholme and MOLA. We expect that machinery will begin to arrive on site from 31st May 2024.
We apologise for any inconvenience this may cause. If you do have any queries on this please do not hesitate to contact our community representatives by email at: hillfarm-sharnbrook@devcomms.co.uk or by freephone on 0800 080 3293.
March 2024 - Anglian Water works update
From 16th March 2024, and following on from our last update, Anglian Water will now begin to undertake diversionary works on the A6. Main works will begin on Monday 18th March (with preparatory works beginning on 16th March), and will continue through until Wednesday 3rd April 2024.
Following this, Anglian Water will return to site on Friday 12th April, for a further week of works along the A6.
We apologise for any inconvenience this may cause. If you do have any queries on this please do not hesitate to contact our community representatives by email at: hillfarm-sharnbrook@devcomms.co.uk or by freephone on 0800 080 3293.
February 2024 - Work update
After a slight delay to existing works elsewhere in the vicinity, the programme of works that were originally due to begin in January 2024 will now begin from 10th February 2024.
From 12th February 2024, Mida contractors will begin works along the A6 to remove the trees and hedgerows (shown in red on the below plan), to start to form the temporary access and compound ready for Anglian Water to progress diversion works.
The works on site will last one week and involve temporary traffic lights along one section of the A6.
We apologise for any inconvenience this may cause. If you do have any queries on this please do not hesitate to contact our community representatives by email at: hillfarm-sharnbrook@devcomms.co.uk or by freephone on 0800 080 3293.
January 2024 – Planning Update
As of January 2024, we have now submitted a new, Hybrid application to Bedford Borough Council to seek detailed planning permission for 304 of the dwellings and associated infrastructure, and outline permission, with all matters reserved except access, for the development of 196 dwellings, a primary school, community hub and the provision of playing pitches and associated infrastructure.
Please see below a plan which indicates the proposed changes to this part of the site:
Bedford Borough Council has produced a Briefing Note to assist with the Public Consultation. The note can be found on the Borough Council’s Public Access system under the ‘Documents’ tab. A copy of the briefing note can also be downloaded below.
Planning update – October 2023
As part of our ongoing work on the proposals for Hill Farm, Sharnbrook, we have recently submitted a full planning application and listed building consent application for the Heritage area, which covers the existing farm buildings, barns, outbuildings and three bungalows.
The applications would allow the replacement of the three existing bungalows on site, with three new detached dwellings and garages, on the western side of the application site. Further works include the demolition of modern agricultural buildings within the farm complex, whilst those barns with historic importance and the listed building will be converted into three dwellings which is on the eastern part of the site.
Please see below a plan which indicates the proposed changes to this part of the site.
Link to applications:
Planning Update - September 2023
Following the submissions to Bedford Borough Council in May of this year, the applicant has been in constructive discussions with the Planning Department, with input from technical consultees such as Highways and Conservation. The outcome of those discussions is that revisions are being made to the spatial masterplan to integrate with the proposals coming forward for the listed farmhouse. The applicant is currently preparing these amendments and it is expected that these revisions will be submitted within the next few weeks. The website will be updated with these details once the submission has been made, and links to the key documentation provided.
Update – 21st July 2023
As part of the ongoing progression of the planning application for the site, we are now due to undertake a period of archaeological field evaluation work, involving shallow site strip and an area of trial trenching, on the site at Hill Farm, Sharnbrook.
This work will begin on Monday 24 July 2023 and will be ongoing for 12 to 14 weeks.
Please see below a plan which outlines the extent of the work:

This work has been agreed with Bedford Borough Council Archaeology under a Written Scheme of Investigation, which sets out the scope of works required to assess the presence of archaeological remains within the site area. The findings will be recorded and reported back to the Council’s Archaeologist.
Access for this work will be arranged from the A6 Mill Road roundabout and the existing agricultural access, in order to limit the impact on the local community.
We apologise for any inconvenience this may cause. If you do have any queries on this please do not hesitate to contact our community representatives by email at: hillfarm-sharnbrook@devcomms.co.uk or by freephone on 0800 080 3293.
Update – April 2023
Following on from the consultation period on the planning application, we have been reviewing the responses and preparing amendments and responses to address these comments.
On 20th April 2023, a set of amendments was submitted alongside a series of updates to support the technical documentation. These amendments can be viewed on the Bedford Borough Council planning portal under reference number 22/02193/MAF.
Update - 25 October 2022
As part of the due diligence investigations required as part of our planning application for Land at Hill Farm, Sharnbrook, we have now agreed with Bedford Borough Council highways and begun a series of work along Mill Road and Templars Way. These include trial holes which are being dug around the Hill Farm site to identify the precise location and depth of critical infrastructure.
To carry out these investigations accurately it is necessary that some invasive investigation is completed around the proposed Hill Farm site access points. As such, our appointed contractor, Lydon Contracting, will be completing these investigations this week, having obtained all necessary permits to undertake the work.
The works require short-term restrictions to traffic movement to ensure we are acting within the parameters of the agreed permits. To ensure the investigations are as minimally disruptive as possible, they will be taking place during the half-term school holiday this week.
The works itinerary is as follows:
- 25.10.22 – undertake works within the highway on Templars Way
- 26.10.22 – undertake works within the highway on Templar Way and Mill Road, with limited works within the site.
- All works to be complete on 26.10.22.
We apologise for any inconvenience this may cause. If you do have any queries on this please do not hesitate to contact our community representatives by email at: hillfarm-sharnbrook@devcomms.co.uk or by freephone on 0800 080 3293.
20 October 2022
On Friday 14th October, Redrow and Bellway held a community information event at Sharnbrook Methodist Church. At the event, which was attended by seventy people, we were able to answer queries relating to the recently submitted planning application. These included questions relating to highways improvements, infrastructure and landscaping. The information boards used at the event, which include details of the full application, are available to download below:
The Mill Road roundabout, highlighted on the roundabout plan on board 9, has since been replaced with an updated version. The technical drawings for this can be found below:
October 2022
Following on from our Outline Planning Application, we have now submitted a new Full Planning Application to Bedford Borough Council on our proposals, which closely aligns with the Neighbourhood Plan policy and provide more detail in connection with the appearance, scale, setting and layout of our proposals. We are hosting an information event to present our full application proposals to the local community, provide an update on our progress to date and answer any questions that you have.
Details of the information event can be found at the Public Engagement page, and on the leaflet available to download below.
Submission of a Full Planning Application - September 2022
Following the submission of the Outline Planning Application for the erection of up to 500 dwellings at Hill Farm in May, work has continued apace on preparing a detailed proposal for the site. Working through the detail enables us to better answer questions raised by residents, such as how the various aspects of the development will work on the ground. Further understanding matters such as the layout of the residential areas will enable us to be clear on the proposed sizes, type and tenure of housing that will be delivered and where dwellings are to be located on the site. Detailing the hierarchy of the proposed streets; the network of pedestrian and cycle routes; the green open spaces and play areas; and the proposed landscaping; will also allow us to provide a clearer vision of how the site will look when completed.
We are also mindful that people have concerns about impacts on infrastructure, so looking at matters such as highway improvements, access arrangements and drainage design will all provide a higher degree of clarity to residents that the technical work has been done to support the proposals going forward.
Therefore, having progressed the detail to such an advanced stage, and having had the benefit of input from technical consultees engaged through the outline submission, Bellway and Redrow have concluded that a Full (detailed) Planning Application should be submitted, and a target submission date set for the beginning of September 2022.
Making a detailed application now will help support housing delivery and the implementation of the Neighbourhood Plan. The focus will be on securing the determination of the full application in a reasonable timeframe. This will benefit to the community by providing further detail of the scheme at a much higher resolution than is normal at this stage.
In support of the submission, an Information Evening is being arranged, and details will be made available via the website, the Parish Council and other local media sources.
15 July 2022